Property Detail

Description

 Price: $ 2,600.00 MLS®: W12516396         Location : 98 Millicent Street Rear Second, Toronto W02, ON M6H 1W4

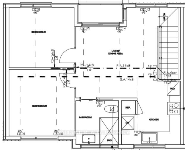
Beautifully finished 2-bedroom garden suite apartment featuring a private entrance and an open-concept living and dining area with Juliet doors leading to a shared backyard, perfect for BBQs and outdoor gatherings. The modern kitchen includes quartz countertops, a matching backsplash, and stainless steel appliances such as a dishwasher, fridge, and stove. The suite also offers in-suite stacked laundry, abundant natural light, and windows in every room. Both bedrooms are equal in size and generously proportioned. Water, gas, central air, heating, and in-suite laundry are all included. Completed in 2024, this newly built unit is located in a highly desirable area within walking distance to TTC, the subway, Dufferin Mall, Dufferin Grove Park, bakeries, Freshco, Walmart, Wallace Community Centre, Galleria Mall, the University of Toronto, and Toronto Metropolitan University. A fantastic location with everything you need just steps away.

Location Description

Dufferin St & Bloor St

Property Details
  • Community: Dovercourt-Wallace Emerson-Junction
  • Property Type: Tenant/Residential Freehold
  • Bedrooms: 2
  • Bath: 1
  • Garages: None
Building Features
  • Foundation Type: Block
  • Construction Material: Aluminum Siding-Stucco (Plaster)
Features
  • Heating: Forced Air Gas
  • Sewer: Sewer ,

Listing Contracted With: SKYBOUND REALTY

Profile

Neerajan Vijayakanthan

Realtor®