Property Detail

Description

 Price: $ 894,900.00 MLS®: N12605386         Location : 18 Schortinghuis Street, Georgina, ON L0E 1R0

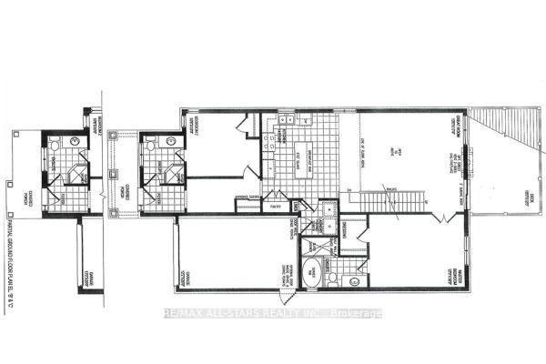
New home to be built in the Hedge Road Landing Active Adult Community. The Juniper Model Elevation B with lot 1355 sq ft. With reasonable monthly maintenance fees which include lawn maintenance and snow removal, a future private clubhouse and 20 x 40 in-ground pool to be constructed. An indirect waterfront property with 260 ft of private lakefront. Premium standard features including 9 ft ceilings, quartz counter tops, engineered hardwood flooring, smooth ceilings. For complete list see builder feature schedule. Paved driveway, and more! Cottage style bungalow, on a 40 ft lot. Superior design and spacious floor plans. Other models available. Reputable builder and registered with Tarion.

Location Description

Black River Rd to Stadaconna to Schortinghuis

Property Details
  • Community: Sutton & Jackson's Point
  • Property Type: Vacant/Residential Freehold
  • Bedrooms: 2
  • Bath: 2
  • Garages: Attached
Building Features
  • Foundation Type: Poured Concrete
  • Construction Material: Vinyl Siding
  • Total Parking Space: 2
Features
  • Heating: Forced Air Gas
  • Sewer: Sewer ,

Listing Contracted With: RE/MAX ALL-STARS REALTY INC.

Profile

Neerajan Vijayakanthan

Realtor®