Property Detail

Description

 Price: $ 3,975.00 MLS®: C12539004         Location : 778 Sheppard Avenue W 104, Toronto C06, ON M3H 6B7

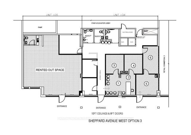
All Inclusive Lease (Tmi & Utilities Included)! Turn Key Medical Or Professional Office. Ground Floor Space Fronting On Sheppard Ave. Listed Price Is For Rooms 1 to 4 On The Attached Floor Plan. Access to Washrooms. Street Exposure Along Sheppard W Just 2 Blocks Away From Bathurst & Subway Access. High Traffic. Free Customer/Patient Parking. Finished Space. Ideal For Medical/Rehab/Office/Lawyer/Accountant/Professional Use. Tmi & Utilities Included. Surface Level Parking Available.

Location Description

Bathurst / Sheppard Ave W

Property Details
  • Community: Bathurst Manor
  • Property Type: Vacant/Commercial
  • Bath: 3
  • Garages: Reserved/Assignd
Building Features
Features
  • Heating: Gas Forced Air Closed
  • Sewer: None ,

Listing Contracted With: CAPITAL NORTH REALTY CORPORATION

Profile

Neerajan Vijayakanthan

Realtor®